高さ38mmタイプ 角波型

特長

抜群の耐久性、耐食性を誇り、加工も簡単なRIKENスパンドレルの基本形状。

RIKENのスパンドレルは、ビル建築の天井材や壁材として幅広くご活用していただけるビル建材。シャープなフォルム、強度にすぐれた断面形状をもち、アルミニウムの美しい外観により、さらに建築デザインの可能性を追求しています。しかも抜群の耐久性、耐食性を誇り、軽量で加工しやすいため、工期の短縮、コストダウン、仕上がりの均質化、さらには作業者の労力負担の軽減…などにも大きく貢献。幅広いRIKENのスパンドレル・バリエーションの中から、最適最良の逸品を、ぜひお選びください。

RA-3802

RA-3802.jpg
板厚 1.4
働き幅 120
アルマイト仕上げ
焼付塗装仕上げ
木目調・
メタル調仕上げ
高耐候 内・外装用
シートWE・DE
×
超高耐候 内・外装用
シートWTA
×
木目塗装 WP ×
有孔 ×

RA-3805

RA-3805_1.jpg
板厚 1.3
働き幅 100
アルマイト仕上げ
焼付塗装仕上げ
木目調・
メタル調仕上げ
高耐候 内・外装用
シートWE・DE
×
超高耐候 内・外装用
シートWTA
×
木目塗装 WP ×
有孔 ×

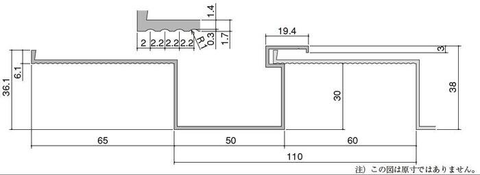
RA-3806

RA-3806.jpg
板厚 1.4
働き幅 110
アルマイト仕上げ
焼付塗装仕上げ
木目調・
メタル調仕上げ
高耐候 内・外装用
シートWE・DE
×
超高耐候 内・外装用
シートWTA
×
木目塗装 WP ×
有孔 ×

Topics トピックス

カタログ