貼り分けスパンドレル

特長

左右同時進行で施工ができ、工期間の短縮、コストダウンにも大きく貢献。

左右対称の形状をもつ貼り分けスパンドレルは左右同時進行が可能なため、工期の短縮はもちろん、コストダウンに大きく貢献します。※焼付塗装のみとなります。

RA-100HK

板厚 1
働き幅 100
アルマイト仕上げ ×
焼付塗装仕上げ
木目調・
メタル調仕上げ
高耐候 内・外装用
シートWE・DE
×
超高耐候 内・外装用
シートWTA
×
木目塗装 WP ×
有孔 ×

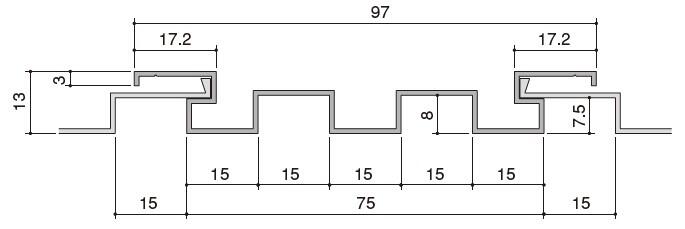
RA-15HK

板厚 1
働き幅 75
アルマイト仕上げ ×
焼付塗装仕上げ
木目調・
メタル調仕上げ
高耐候 内・外装用
シートWE・DE
×
超高耐候 内・外装用
シートWTA
×
木目塗装 WP ×
有孔 ×

貼り方向

※パネルの最長寸法は6mまでです。納期・数量・4m以上はご相談ください。

Topics トピックス

カタログ